Friday, August 26, 2016

The Home for Artists- Project in the River Art District of Asheville, NC, The United States (Phase III)

The Home for Artists- Project in the River Art District of Asheville, NC, The United States (Phase III)

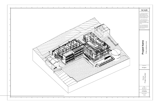
Phase III expresses the entire project BIM modeling and green building design strategy diagram with building performance






























1 comment:

  1. The project looks like an ideal example of combination of the living-work residential for the art district

    ReplyDelete